新しいお家探しはBrand New Home

スプランディッドあびこ駅前

183,000 (管理費等: 15,500 円)

敷金 無料 礼金 無料
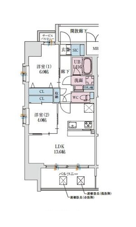
間取り 2LDK
情報登録日:2026年03月02日
情報更新日:2026年03月31日
次回更新予定日:2026年04月14日
賃料 183,000
管理費 15,500円
敷金/礼金 無料 / 無料
間取り 2LDK
広さ 56㎡
築年 2026年8月
方位
交通機関
  • OsakaMetro御堂筋線「あびこ」より徒歩2分
  • JR阪和線「我孫子町」より徒歩13分
  • JR阪和線「杉本町」より徒歩14分
  • OsakaMetro御堂筋線「長居」より徒歩20分
物件所在地 大阪府大阪市住吉区苅田9丁目
建物名:
スプランディッドあびこ駅前
保証会社 要加入 /  信和保証
鍵交換代 11,000円
諸経費 アクト安心ライフ24 入居時 15,000円
部屋の特徴 ガス(都市ガス)、インターホン(TVモニター付き)、防犯カメラ、オートロック、宅配ボックス、専用ゴミ置き場(あり)、駐輪場、バイク置き場、日当り良好、通風良好、フローリング、全居室フローリング、クッションフロア、ベランダ・バルコニー、クローゼット、クローゼット数(3)、シューズウォークインクローゼット、バス・トイレ別(別室)、シャワー、追い焚き、浴室乾燥機、脱衣所、給湯、3点給湯、ウォシュレット、ウォームレット、洗面台、洗面所独立、シャンプードレッサー、洗濯機置き場(室内)、コンロ設置済、コンロ口数(3)、コンロ種類(都市ガス)、グリル、システムキッチン、カウンターキッチン、エアコン、エアコン台数(3)、24H換気システム、インターネット使用料無料

スプランディッドあびこ駅前に関するお問い合わせ

株式会社Brand New Home
  • 〒591-8043
  • 大阪府堺市北区北長尾町2-4-8
  • [営業時間]10:00~18:00
  • [定休日]不定休
  • [免許番号]大阪府知事免許(01)第063387号