新しいお家探しはBrand New Home

フジパレス杉本町Ⅰ番館

59,000 (管理費等: 4,600 円)

敷金 無料 礼金 3ヶ月
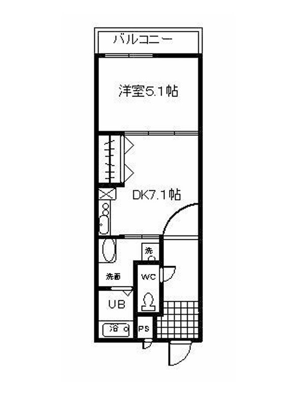
間取り 1DK
情報登録日:2025年11月07日
情報更新日:2025年12月14日
次回更新予定日:2025年12月28日
賃料 59,000
管理費 4,600円
敷金/礼金 無料 / 3ヶ月
間取り 1DK
広さ 30㎡
築年 2011年12月
方位
交通機関
  • JR阪和線「杉本町」より徒歩3分
  • JR阪和線「我孫子町」より徒歩10分
  • OsakaMetro御堂筋線「あびこ」より徒歩14分
  • 南海高野線「我孫子前」より徒歩11分
物件所在地 大阪府大阪市住吉区杉本2丁目
建物名:
フジパレス杉本町Ⅰ番館
保証会社 要加入 /  オリコフォレントシュア
鍵交換代 11,000円
諸経費 -
部屋の特徴 ガス(都市ガス)、インターホン(TVモニター付き)、専用ゴミ置き場(24Hゴミ出し可)、駐輪場、日当り良好、眺望良好、通風良好、フローリング、全居室フローリング、クッションフロア、照明器具、ベランダ・バルコニー、クローゼット、クローゼット数(1)、バス・トイレ別(別室)、シャワー、浴室乾燥機、脱衣所、給湯、3点給湯、ウォシュレット、洗面台、洗面所独立、シャンプードレッサー、洗濯機置き場(室内)、コンロ設置済、コンロ口数(2)、コンロ種類(IH)、システムキッチン、エアコン、エアコン台数(1)、24H換気システム

フジパレス杉本町Ⅰ番館に関するお問い合わせ

株式会社Brand New Home
  • 〒591-8043
  • 大阪府堺市北区北長尾町2-4-8
  • [営業時間]10:00~18:00
  • [定休日]不定休
  • [免許番号]大阪府知事免許(01)第063387号