株式会社Brand New Home

  • お気に入り
  • プライバシーポリシー
  • サイトマップ
株式会社Brand New Home

営業時間 / 10:00~18:00 (定休日/不定休)

Re-Home下田 1階

  • 敷金0
  • ペット可
  • 駅近

お問い合わせ番号: 14036047

部屋紹介

Brand New Home(ブランニューホーム)で新しい住まいを♪
とにかく安く、駅近くで住みたい方にオススメの物件です^^
広さもあり収納も広いのでお部屋を余すことなく使いたい方には良い間取りですよね☆

間取り 間取り詳細 面積 賃料 管理費/共益費 敷金(保証金) 礼金 採光向き
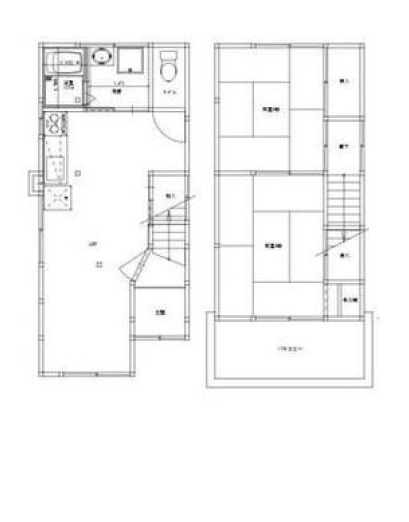
2LDK LDK 畳
和室 6畳
和室 6畳
52.43㎡

68,000

1,100円 無料 1ヶ月 -

物件写真

物件情報は代表的なお部屋を掲載しております。
建物内の別の間取りでも空室がある場合がございます。
ご指名物件の空室待ちなども受付けておりますので、お電話かメールにてスタッフまでお申付下さい。
※写真や図と現況が異なる場合は現況を優先させていただきます。

部屋紹介

間取り 2LDK
間取り詳細 LDK 畳 、 和室 6畳 、 和室 6畳

物件概要・設備
情報登録日:2026年03月23日 情報更新日:2026年03月23日 次回更新予定日:2026年04月06日

物件種別 一戸建
物件名 Re-Home下田
物件所在地 大阪府堺市西区下田町
交通機関
  • JR阪和線「津久野駅」より徒歩5分
  • JR阪和線「上野芝駅」より徒歩15分
  • JR阪和線「鳳駅」より徒歩21分
  • 南海本線「諏訪ノ森駅」より徒歩22分
周辺施設
  • ショッピングセンター: ジャパン堺浜寺店 距離501m
  • スーパー: イトーヨーカドー津久野店 距離211m
  • スーパー: サンディ津久野店 距離211m
  • スーパー: デイリーカナート向ヶ丘店 距離603m
  • コンビニ: ファミリーマートMYS堺神石市之町店 距離419m
  • ドラッグストア: ウエルシア堺津久野店 距離1163m
  • 病院: 社会医療法人ペガサス馬場記念病院 距離854m
  • 郵便局: 鳳郵便局 距離603m
特記事項 二人入居可、ファミリータイプ、ネコ可、ペット対応
賃料 68,000円 管理費/共益費 1,100円
敷金 無料 礼金 1ヶ月
フリーレント - 保険 -
間取り 2LDK 面積 52.43㎡
採光向き - 契約形態 普通契約 2年
所在階 1階 入居可能日 即日
総戸数 1戸 竣工月 1971年1月
建築構造 木造 建物階建 地上2階 
駐車場 駐車料 -
火災保険 - 鍵交換代 -
保証会社 -
諸経費 たのもしーど24 月額 2,000円
設備 インターホン(音声)、専用ゴミ置き場(あり)、駐輪場、通風良好、フローリング、クッションフロア、ベランダ・バルコニー、押入れ、バス・トイレ別(別室)、シャワー、脱衣所、給湯、ウォシュレット、洗面台、洗面所独立、シャンプードレッサー、洗濯機置き場(室内)、コンロ設置済、グリル、システムキッチン
備考 -

近隣マップ

Re-Home下田へのお問い合わせ

株式会社Brand New Home

072-252-1220

お問い合せ番号: 14036047

所在地 〒591-8043 大阪府堺市北区北長尾町2-4-8
営業時間 10:00~18:00 定休日 不定休

お問い合せフォーム

必須お名前
任意フリガナ
必須メールアドレス
任意電話番号
連絡ご希望の時間帯
任意FAX番号
任意郵送 住所
必須お問い合せ内容

個人情報のお取り扱いについて

お問い合わせフォームからお客様が入力された個人情報は、資料送付・電子メール送信・電話連絡などの目的でのみ使用いたします。 また、本サービスを円滑に運用するために、お客様の個人情報をサービスご利用の控えとして一定期間保管いたします。 メールアドレス・電話/FAX番号など、ご記入の内容が不明確でご連絡差し上げる事ができない場合、当社が本サービスを円滑に運用するために必要な範囲において直接確認のご連絡をさせていただく場合がありますのであらかじめご了承ください。 個人情報の取扱い方針については、こちらをご覧ください。

新着お知らせ