株式会社Brand New Home

  • お気に入り
  • プライバシーポリシー
  • サイトマップ
株式会社Brand New Home

営業時間 / 10:00~18:00 (定休日/不定休)

スプランディッドあびこ駅前 15階

  • 礼金0
  • 敷金0
  • ペット可
  • 駅近

お問い合わせ番号: 13940248

部屋紹介

Brand New Home(ブランニューホーム)で新しい住まいを♪
グリル付きの3口コンロで段取り良くお料理が出来ます♪
セキュリティー面もしっかりしており設備充実のワンランク上の物件が現実になる物件です^^
贅沢な暮らしを堪能してみませんか^^

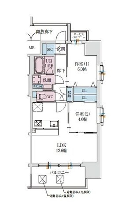
間取り 間取り詳細 面積 賃料 管理費/共益費 敷金(保証金) 礼金 採光向き
2LDK LDK 13.6畳
洋室 6畳
洋室 4畳
56㎡

201,000

15,500円 無料 無料

物件写真

物件情報は代表的なお部屋を掲載しております。
建物内の別の間取りでも空室がある場合がございます。
ご指名物件の空室待ちなども受付けておりますので、お電話かメールにてスタッフまでお申付下さい。
※写真や図と現況が異なる場合は現況を優先させていただきます。

部屋紹介

間取り 2LDK
間取り詳細 LDK 13.6畳 、 洋室 6畳 、 洋室 4畳

物件概要・設備
情報登録日:2026年03月03日 情報更新日:2026年04月14日 次回更新予定日:2026年04月28日

物件種別 マンション
物件名 スプランディッドあびこ駅前
物件所在地 大阪府大阪市住吉区苅田9丁目
交通機関
  • OsakaMetro御堂筋線「あびこ駅」より徒歩2分
  • JR阪和線「我孫子町駅」より徒歩13分
  • JR阪和線「杉本町駅」より徒歩14分
  • OsakaMetro御堂筋線「長居駅」より徒歩20分
周辺施設
  • スーパー: サンディあびこ店 距離341m
  • コンビニ: ファミリーマート地下鉄あびこ駅南店 距離288m
  • ドラッグストア: スギ薬局あびこ駅前店 距離365m
  • ショッピングセンター: イオンモール堺北花田 距離1490m
  • ホームセンター: ワッツウィズ我孫子ダイエー店 距離512m
  • 郵便局: 住吉我孫子東郵便局 距離340m
  • 病院: 医療法人慈心会あびこ病院 距離945m
  • 銀行: りそな銀行我孫子支店 距離611m
特記事項 二人入居可、ファミリータイプ、ネコ可、ペット対応、保証会社利用可
賃料 201,000円 管理費/共益費 15,500円
敷金 無料 礼金 無料
フリーレント - 保険 1年 10000円
間取り 2LDK 面積 56㎡
採光向き 契約形態 普通契約 2年
所在階 15階 入居可能日 2026/8/下
総戸数 84戸 竣工月 2026年8月
建築構造 RC 建物階建 地上15階 
駐車場 駐車料 27,500円
火災保険 鍵交換代 11,000円
保証会社 要加入 /  信和保証
諸経費 アクト安心ライフ24 入居時 15,000円
設備 ガス(都市ガス)、インターホン(TVモニター付き)、防犯カメラ、オートロック、宅配ボックス、専用ゴミ置き場(あり)、駐輪場、バイク置き場、日当り良好、通風良好、フローリング、全居室フローリング、クッションフロア、ベランダ・バルコニー、クローゼット、クローゼット数(3)、シューズウォークインクローゼット、バス・トイレ別(別室)、シャワー、追い焚き、浴室乾燥機、脱衣所、給湯、3点給湯、ウォシュレット、ウォームレット、洗面台、洗面所独立、シャンプードレッサー、洗濯機置き場(室内)、コンロ設置済、コンロ口数(3)、コンロ種類(都市ガス)、グリル、システムキッチン、カウンターキッチン、エアコン、エアコン台数(1)、24H換気システム、インターネット使用料無料
備考 -

近隣マップ

スプランディッドあびこ駅前へのお問い合わせ

株式会社Brand New Home

072-252-1220

お問い合せ番号: 13940248

所在地 〒591-8043 大阪府堺市北区北長尾町2-4-8
営業時間 10:00~18:00 定休日 不定休

お問い合せフォーム

必須お名前
任意フリガナ
必須メールアドレス
任意電話番号
連絡ご希望の時間帯
任意FAX番号
任意郵送 住所
必須お問い合せ内容

個人情報のお取り扱いについて

お問い合わせフォームからお客様が入力された個人情報は、資料送付・電子メール送信・電話連絡などの目的でのみ使用いたします。 また、本サービスを円滑に運用するために、お客様の個人情報をサービスご利用の控えとして一定期間保管いたします。 メールアドレス・電話/FAX番号など、ご記入の内容が不明確でご連絡差し上げる事ができない場合、当社が本サービスを円滑に運用するために必要な範囲において直接確認のご連絡をさせていただく場合がありますのであらかじめご了承ください。 個人情報の取扱い方針については、こちらをご覧ください。

新着お知らせ