株式会社Brand New Home

  • お気に入り
  • プライバシーポリシー
  • サイトマップ
株式会社Brand New Home

営業時間 / 10:00~18:00 (定休日/不定休)

堺区宿屋町西一丁戸建 1階

お問い合わせ番号: 12768054

部屋紹介

Brand New Home(ブランニューホーム)で新しい住まいを♪
夢の駐車場付き、設備充実一戸建てに住んでみませんか♪
IH3口コンロ設置でお料理が好きな人も掃除が苦手な人も嬉しいですね♪
お風呂も広くて足を伸ばして1日の疲れを癒してくれます♪
家具などの配置で色々な雰囲気を楽しめる唯一無二のこの空間でどんなお部屋に仕上げますか^^

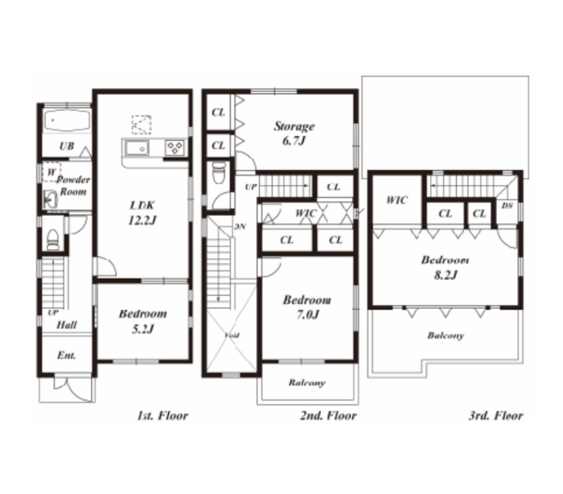
間取り 間取り詳細 面積 賃料 管理費/共益費 敷金(保証金) 礼金 採光向き
3SLDK LDK 12.2畳
洋室 8.2畳
洋室 7畳
洋室 5.2畳
S 6.7畳
107.32㎡

155,000

無料 1ヶ月 2ヶ月 -

物件写真

物件情報は代表的なお部屋を掲載しております。
建物内の別の間取りでも空室がある場合がございます。
ご指名物件の空室待ちなども受付けておりますので、お電話かメールにてスタッフまでお申付下さい。
※写真や図と現況が異なる場合は現況を優先させていただきます。

部屋紹介

間取り 3SLDK
間取り詳細 LDK 12.2畳 、 洋室 8.2畳 、 洋室 7畳 、 洋室 5.2畳 、 S 6.7畳

物件概要・設備
情報登録日:2025年09月25日 情報更新日:2025年11月03日 次回更新予定日:2025年11月17日

物件種別 一戸建
物件名 堺区宿屋町西一丁戸建
物件所在地 大阪府堺市堺区宿院町西1丁
交通機関
  • 南海本線「堺駅」より徒歩9分
  • 南海本線「湊駅」より徒歩15分
  • 南海高野線「堺東駅」より徒歩17分
  • 南海本線「七道駅」より徒歩26分
周辺施設
  • スーパー: スーパーマーケットKINSHO大小路店 距離462m
  • コンビニ: ローソンストア100堺宿院店 距離96m
  • ドラッグストア: ドラッグセイムス堺大小路店 距離376m
  • 病院: 医療法人いずみ会阪堺病院 距離779m
  • 郵便局: 堺宿院郵便局 距離340m
  • 銀行: 大阪厚生信用金庫堺支店 距離273m
  • スーパー: サンプラザ堺少林寺町西店 距離655m
  • コンビニ: セブンイレブン堺宿院店 距離208m
特記事項 二人入居可、ファミリータイプ、ペット不可、保証会社利用可
賃料 155,000円 管理費/共益費 無料
敷金 1ヶ月 礼金 2ヶ月
フリーレント - 保険 2年 24000円
間取り 3SLDK 面積 107.32㎡
採光向き - 契約形態 普通契約 2年
所在階 1階 入居可能日 即日
総戸数 1戸 竣工月 2005年10月
建築構造 鉄骨 建物階建 地上3階 
駐車場 駐車料 無料
火災保険 鍵交換代 -
保証会社 要加入 /  エポス
諸経費 鍵交換(任意) 入居時 50,000円
設備 ガス(都市ガス)、インターホン(TVモニター付き)、専用ゴミ置き場(あり)、駐輪場、バイク置き場、通風良好、フローリング、全居室フローリング、クッションフロア、ベランダ・バルコニー、2面バルコニー、クローゼット、クローゼット数(4)、ウォークインクローゼット、ウォークインクローゼット数(2)、下駄箱、バス・トイレ別(別室)、シャワー、追い焚き、浴室乾燥機、脱衣所、給湯、ウォシュレット、ウォームレット、トイレ2か所、洗面台、洗面所独立、シャンプードレッサー、洗濯機置き場(室内)、コンロ設置済、コンロ口数(3)、コンロ種類(IH)、グリル、食器洗乾燥機、システムキッチン、カウンターキッチン、エアコン、エアコン台数(1)、床暖房、24H換気システム
備考 -

近隣マップ

堺区宿屋町西一丁戸建へのお問い合わせ

株式会社Brand New Home

072-252-1220

お問い合せ番号: 12768054

所在地 〒591-8043 大阪府堺市北区北長尾町2-4-8
営業時間 10:00~18:00 定休日 不定休

お問い合せフォーム

必須お名前
任意フリガナ
必須メールアドレス
任意電話番号
連絡ご希望の時間帯
任意FAX番号
任意郵送 住所
必須お問い合せ内容

個人情報のお取り扱いについて

お問い合わせフォームからお客様が入力された個人情報は、資料送付・電子メール送信・電話連絡などの目的でのみ使用いたします。 また、本サービスを円滑に運用するために、お客様の個人情報をサービスご利用の控えとして一定期間保管いたします。 メールアドレス・電話/FAX番号など、ご記入の内容が不明確でご連絡差し上げる事ができない場合、当社が本サービスを円滑に運用するために必要な範囲において直接確認のご連絡をさせていただく場合がありますのであらかじめご了承ください。 個人情報の取扱い方針については、こちらをご覧ください。

新着お知らせ