株式会社Brand New Home

  • お気に入り
  • プライバシーポリシー
  • サイトマップ
株式会社Brand New Home

営業時間 / 10:00~18:00 (定休日/不定休)

フジパレス堺鳳駅北Ⅰ番館 1階

  • 礼金0
  • 敷金0
  • 駅近

お問い合わせ番号: 12516139

部屋紹介

Brand New Home(ブランニューホーム)で新しい住まいを♪
オートロック付きの広々快適空間をお探しの方に。。。
システムキッチン2口コンロで料理が好きなあなたにピッタリ♪
浴室乾燥機も付いているのでお仕事の帰りが遅い方や急な雨も気にしなくていいですね。

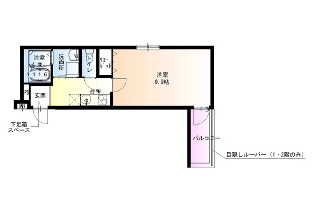
間取り 間取り詳細 面積 賃料 管理費/共益費 敷金(保証金) 礼金 採光向き
1K 洋室 9.9畳
K 2.5畳
30.38㎡

62,500

4,900円 無料 無料

物件写真

物件情報は代表的なお部屋を掲載しております。
建物内の別の間取りでも空室がある場合がございます。
ご指名物件の空室待ちなども受付けておりますので、お電話かメールにてスタッフまでお申付下さい。
※写真や図と現況が異なる場合は現況を優先させていただきます。

部屋紹介

間取り 1K
間取り詳細 洋室 9.9畳 、 K 2.5畳

物件概要・設備
情報登録日:2025年08月18日 情報更新日:2025年12月25日 次回更新予定日:2026年01月08日

物件種別 アパート
物件名 フジパレス堺鳳駅北Ⅰ番館
物件所在地 大阪府堺市西区鳳中町1丁
交通機関
  • JR阪和線「鳳駅」より徒歩4分
  • JR阪和線「津久野駅」より徒歩15分
  • JR阪和線「富木駅」より徒歩20分
  • JR阪和線「東羽衣駅」より徒歩20分
周辺施設
  • ショッピングセンター: おおとりウイングス 距離883m
  • スーパー: マルシゲ鳳店 距離329m
  • コンビニ: セブンイレブンハートインJR鳳駅東口店 距離141m
  • ドラッグストア: ドラッグセイムス堺鳳東店 距離640m
  • 病院: 地方独立行政法人堺市立病院機構堺市立総合医療センター 距離1579m
  • 郵便局: 鳳千種郵便局 距離343m
  • 銀行: 三井住友銀行鳳支店 距離422m
  • スーパー: ダイエーおおとり店 距離1154m
特記事項 二人入居可、ペット不可、保証会社利用可
賃料 62,500円 管理費/共益費 4,900円
敷金 無料 礼金 無料
フリーレント - 保険 2年 15000円
間取り 1K 面積 30.38㎡
採光向き 契約形態 普通契約 1年
所在階 1階 入居可能日 即日
総戸数 15戸 竣工月 2025年9月
建築構造 木造 建物階建 地上3階 
駐車場 駐車料 6,600円
火災保険 鍵交換代 11,000円
保証会社 要加入 /  オリコフォレントシュア
諸経費 -
設備 ガス(都市ガス)、インターホン(TVモニター付き)、防犯カメラ、オートロック、宅配ボックス、専用ゴミ置き場(あり)、駐輪場、日当り良好、通風良好、フローリング、全居室フローリング、クッションフロア、ベランダ・バルコニー、クローゼット、クローゼット数(1)、バス・トイレ別(別室)、シャワー、浴室乾燥機、脱衣所、給湯、ウォシュレット、洗面台、洗面所独立、シャンプードレッサー、洗濯機置き場(室内)、コンロ設置済、コンロ口数(2)、コンロ種類(IH)、システムキッチン、エアコン、エアコン台数(1)、24H換気システム、CS、CATV、インターネット使用料無料
備考 -

近隣マップ

フジパレス堺鳳駅北Ⅰ番館へのお問い合わせ

株式会社Brand New Home

072-252-1220

お問い合せ番号: 12516139

所在地 〒591-8043 大阪府堺市北区北長尾町2-4-8
営業時間 10:00~18:00 定休日 不定休

お問い合せフォーム

必須お名前
任意フリガナ
必須メールアドレス
任意電話番号
連絡ご希望の時間帯
任意FAX番号
任意郵送 住所
必須お問い合せ内容

個人情報のお取り扱いについて

お問い合わせフォームからお客様が入力された個人情報は、資料送付・電子メール送信・電話連絡などの目的でのみ使用いたします。 また、本サービスを円滑に運用するために、お客様の個人情報をサービスご利用の控えとして一定期間保管いたします。 メールアドレス・電話/FAX番号など、ご記入の内容が不明確でご連絡差し上げる事ができない場合、当社が本サービスを円滑に運用するために必要な範囲において直接確認のご連絡をさせていただく場合がありますのであらかじめご了承ください。 個人情報の取扱い方針については、こちらをご覧ください。

新着お知らせ