株式会社Brand New Home

  • お気に入り
  • プライバシーポリシー
  • サイトマップ
株式会社Brand New Home

営業時間 / 10:00~18:00 (定休日/不定休)

エヌエムキャトフヴァンキャトルズ 1階

  • 敷金0

お問い合わせ番号: 11824331

部屋紹介

Brand New Home(ブランニューホーム)で新しい住まいを♪
オートロック、宅配BOX付きのコスパが良すぎるマンション♪
システムキッチン2口コンロで料理が好きなあなたにピッタリ♪
浴室乾燥機も付いているのでお仕事の帰りが遅い方や急な雨も気にしなくていいですね。

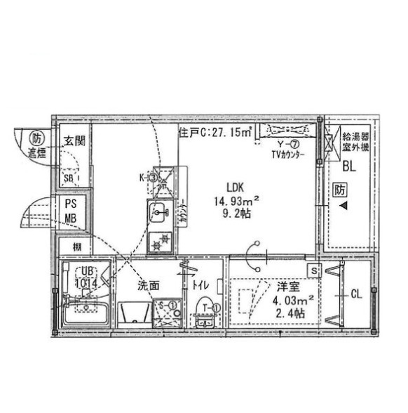
間取り 間取り詳細 面積 賃料 管理費/共益費 敷金(保証金) 礼金 採光向き
1LDK LDK 9.2畳
洋室 2.4畳
27.15㎡

61,000

6,000円 無料 2ヶ月 西

物件写真

物件情報は代表的なお部屋を掲載しております。
建物内の別の間取りでも空室がある場合がございます。
ご指名物件の空室待ちなども受付けておりますので、お電話かメールにてスタッフまでお申付下さい。
※写真や図と現況が異なる場合は現況を優先させていただきます。

部屋紹介

間取り 1LDK
間取り詳細 LDK 9.2畳 、 洋室 2.4畳

物件概要・設備
情報登録日:2025年05月26日 情報更新日:2025年07月07日 次回更新予定日:2025年07月21日

物件種別 アパート
物件名 エヌエムキャトフヴァンキャトルズ
物件所在地 大阪府堺市堺区並松町
交通機関
  • 南海本線「七道駅」より徒歩6分
  • 南海高野線「浅香山駅」より徒歩10分
  • JR阪和線「浅香駅」より徒歩24分
  • 南海本線「堺駅」より徒歩26分
周辺施設
  • ショッピングセンター: イオンモール堺鉄砲町 距離1342m
  • スーパー: 万代堺高須店 距離605m
  • コンビニ: ファミリーマート堺七道東町店 距離307m
  • ドラッグストア: ディスカウントドラッグコスモス七道東店 距離470m
  • ホームセンター: ケーズデンキ堺遠里小野店 距離502m
  • 病院: 医療法人淳康会堺近森病院 距離910m
  • 郵便局: 堺七道郵便局 距離537m
  • 役所: 堺市堺区役所 距離2500m
特記事項 二人入居可、ペット不可、保証会社利用可
賃料 61,000円 管理費/共益費 6,000円
敷金 無料 礼金 2ヶ月
フリーレント - 保険 1年 11000円
間取り 1LDK 面積 27.15㎡
採光向き 西 契約形態 普通契約 2年
所在階 1階 入居可能日 即日
総戸数 9戸 竣工月 2025年4月
建築構造 鉄骨 建物階建 地上3階 
駐車場 駐車料 -
火災保険 鍵交換代 16,500円
保証会社 要加入 /  全保連
諸経費 Eサポート 入居時 8,000円
自転車シール 入居時 200円
設備 ガス(プロパン)、インターホン(TVモニター付き)、防犯カメラ、オートロック、宅配ボックス、専用ゴミ置き場(あり)、駐輪場、日当り良好、角部屋、通風良好、フローリング、全居室フローリング、クッションフロア、ベランダ・バルコニー、クローゼット、クローゼット数(1)、下駄箱、バス・トイレ別(別室)、シャワー、浴室乾燥機、脱衣所、給湯、ウォシュレット、洗面台、洗面所独立、シャンプードレッサー、洗濯機置き場(室内)、コンロ設置済、コンロ口数(2)、コンロ種類(プロパン)、システムキッチン、カウンターキッチン、エアコン、エアコン台数(1)、24H換気システム、CATV、インターネット使用料無料
備考 -

近隣マップ

エヌエムキャトフヴァンキャトルズへのお問い合わせ

株式会社Brand New Home

072-252-1220

お問い合せ番号: 11824331

所在地 〒591-8043 大阪府堺市北区北長尾町2-4-8
営業時間 10:00~18:00 定休日 不定休

お問い合せフォーム

必須お名前
任意フリガナ
必須メールアドレス
任意電話番号
連絡ご希望の時間帯
任意FAX番号
任意郵送 住所
必須お問い合せ内容

個人情報のお取り扱いについて

お問い合わせフォームからお客様が入力された個人情報は、資料送付・電子メール送信・電話連絡などの目的でのみ使用いたします。 また、本サービスを円滑に運用するために、お客様の個人情報をサービスご利用の控えとして一定期間保管いたします。 メールアドレス・電話/FAX番号など、ご記入の内容が不明確でご連絡差し上げる事ができない場合、当社が本サービスを円滑に運用するために必要な範囲において直接確認のご連絡をさせていただく場合がありますのであらかじめご了承ください。 個人情報の取扱い方針については、こちらをご覧ください。

新着お知らせ