株式会社Brand New Home

  • お気に入り
  • プライバシーポリシー
  • サイトマップ
株式会社Brand New Home

営業時間 / 10:00~18:00 (定休日/不定休)

Apice 1階

お問い合わせ番号: 12597773

部屋紹介

Brand New Home(ブランニューホーム)で新しい住まいを♪
もう1ランク上の物件に住みたいな。。。を現実に出来る物件♪
敷地内に駐車場あり♪
リビングの扉をあけるとそこには開放的な空間のリビング♪
家具などの配置で色々な雰囲気を楽しめる唯一無二のこの空間でどんなお部屋に仕上げますか^^

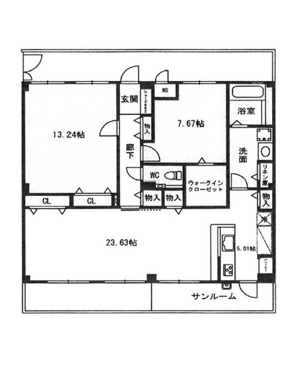
間取り 間取り詳細 面積 賃料 管理費/共益費 敷金(保証金) 礼金 採光向き
2LDK LDK 畳
洋室 13.24畳
洋室 7.67畳
110㎡

120,000

5,000円 20,000円 250,000円 南西

物件写真

物件情報は代表的なお部屋を掲載しております。
建物内の別の間取りでも空室がある場合がございます。
ご指名物件の空室待ちなども受付けておりますので、お電話かメールにてスタッフまでお申付下さい。
※写真や図と現況が異なる場合は現況を優先させていただきます。

部屋紹介

間取り 2LDK
間取り詳細 LDK 畳 、 洋室 13.24畳 、 洋室 7.67畳

物件概要・設備
情報登録日:2025年09月01日 情報更新日:2025年11月09日 次回更新予定日:2025年11月23日

物件種別 アパート
物件名 Apice
物件所在地 大阪府堺市西区浜寺船尾町東3丁
交通機関
  • JR阪和線「津久野駅」より徒歩15分
  • 南海本線「諏訪ノ森駅」より徒歩15分
  • JR阪和線「上野芝駅」より徒歩20分
  • 南海本線「石津川駅」より徒歩20分
周辺施設
  • ショッピングセンター: ジャパン堺浜寺店 距離504m
  • スーパー: 業務スーパー鳳店 距離594m
  • コンビニ: ファミリーマートMYS堺神石市之町店 距離335m
  • ドラッグストア: ウエルシア堺鳳中町店 距離1439m
  • 病院: 社会医療法人ペガサス馬場記念病院 距離368m
  • 郵便局: 堺浜寺船尾郵便局 距離755m
  • 銀行: JA堺市中部南支所 距離1087m
  • スーパー: イトーヨーカドー津久野店 距離703m
特記事項 二人入居可、ファミリータイプ、ペット不可、保証会社利用可
賃料 120,000円 管理費/共益費 5,000円
敷金 20,000円 礼金 250,000円
フリーレント - 保険 1年 10000円
間取り 2LDK 面積 110㎡
採光向き 南西 契約形態 普通契約 1年
所在階 1階 入居可能日 2025/9/中
総戸数 9戸 竣工月 2011年12月
建築構造 鉄骨 建物階建 地上2階 
駐車場 駐車料 22,000円
火災保険 鍵交換代 22,000円
保証会社 要加入 /  エポスカード
諸経費 自治会費 年額 2,400円
リブネス安心サポート 入居時 800円
設備 ガス(都市ガス)、インターホン(TVモニター付き)、オートロック、宅配ボックス、専用ゴミ置き場(あり)、駐輪場、日当り良好、角部屋、通風良好、フローリング、全居室フローリング、クッションフロア、ベランダ・バルコニー、クローゼット、クローゼット数(2)、ウォークインクローゼット、ウォークインクローゼット数(1)、下駄箱、バス・トイレ別(別室)、シャワー、追い焚き、浴室乾燥機、脱衣所、給湯、ウォシュレット、洗面台、洗面所独立、シャンプードレッサー、洗濯機置き場(室内)、コンロ設置済、コンロ口数(3)、コンロ種類(都市ガス)、食器洗乾燥機、カウンターキッチン、24H換気システム、光ファイバー、インターネット使用料無料
備考 -

近隣マップ

Apiceへのお問い合わせ

株式会社Brand New Home

072-252-1220

お問い合せ番号: 12597773

所在地 〒591-8043 大阪府堺市北区北長尾町2-4-8
営業時間 10:00~18:00 定休日 不定休

お問い合せフォーム

必須お名前
任意フリガナ
必須メールアドレス
任意電話番号
連絡ご希望の時間帯
任意FAX番号
任意郵送 住所
必須お問い合せ内容

個人情報のお取り扱いについて

お問い合わせフォームからお客様が入力された個人情報は、資料送付・電子メール送信・電話連絡などの目的でのみ使用いたします。 また、本サービスを円滑に運用するために、お客様の個人情報をサービスご利用の控えとして一定期間保管いたします。 メールアドレス・電話/FAX番号など、ご記入の内容が不明確でご連絡差し上げる事ができない場合、当社が本サービスを円滑に運用するために必要な範囲において直接確認のご連絡をさせていただく場合がありますのであらかじめご了承ください。 個人情報の取扱い方針については、こちらをご覧ください。

新着お知らせ