株式会社Brand New Home

  • お気に入り
  • プライバシーポリシー
  • サイトマップ
株式会社Brand New Home

営業時間 / 10:00~18:00 (定休日/不定休)

ムーランアヴァンB 1階

  • 敷金0
  • ペット相談

お問い合わせ番号: 12480008

部屋紹介

Brand New Home(ブランニューホーム)で新しい住まいを♪
大事なワンちゃんと一緒に住める数少ないペット物件です♪
オートロック・TV付きモニターでセキュリティも安心♪
玄関に下駄箱スペース・部屋にはウォークインクローゼットがあり収納も充実してます。
浴室乾燥機付きなので天候の悪い日も気にしなくていいですね^^

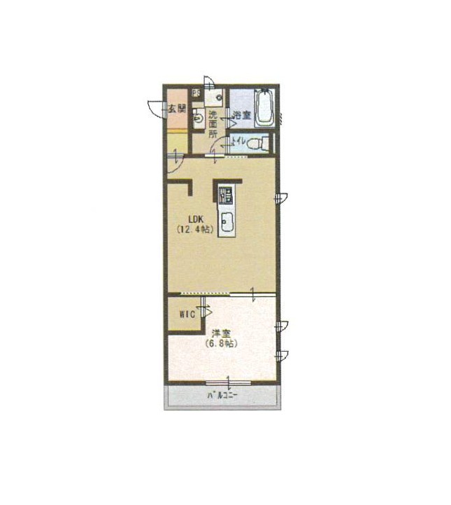
間取り 間取り詳細 面積 賃料 管理費/共益費 敷金(保証金) 礼金 採光向き
1LDK LDK 12.4畳
洋室 6.8畳
45.34㎡

73,000

6,000円 無料 2ヶ月

物件写真

物件情報は代表的なお部屋を掲載しております。
建物内の別の間取りでも空室がある場合がございます。
ご指名物件の空室待ちなども受付けておりますので、お電話かメールにてスタッフまでお申付下さい。
※写真や図と現況が異なる場合は現況を優先させていただきます。

部屋紹介

間取り 1LDK
間取り詳細 LDK 12.4畳 、 洋室 6.8畳

物件概要・設備
情報登録日:2025年08月08日 情報更新日:2025年10月15日 次回更新予定日:2025年10月29日

物件種別 アパート
物件名 ムーランアヴァンB
物件所在地 大阪府堺市西区浜寺石津町東4丁
交通機関
  • 南海本線「石津川駅」より徒歩13分
  • 南海本線「諏訪ノ森駅」より徒歩13分
  • JR阪和線「津久野駅」より徒歩19分
  • JR阪和線「上野芝駅」より徒歩23分
周辺施設
  • ショッピングセンター: ジャパン堺浜寺店 距離998m
  • スーパー: コノミヤ浜寺石津店 距離352m
  • コンビニ: ローソン浜寺石津東三丁店 距離504m
  • 病院: 社会医療法人ペガサス馬場記念病院 距離995m
  • 郵便局: 堺浜寺船尾郵便局 距離952m
  • 銀行: JA堺市中部南支所 距離617m
  • スーパー: ライフ石津店 距離1453m
  • コンビニ: セブンイレブン堺浜寺船尾町西店 距離952m
特記事項 二人入居可、ペット相談、保証会社利用可
賃料 73,000円 管理費/共益費 6,000円
敷金 無料 礼金 2ヶ月
フリーレント - 保険 -
間取り 1LDK 面積 45.34㎡
採光向き 契約形態 普通契約 2年
所在階 1階 入居可能日 即日
総戸数 - 竣工月 2016年9月
建築構造 軽量鉄骨 建物階建 地上3階 
駐車場 駐車料 13,200円
火災保険 - 鍵交換代 16,500円
保証会社 要加入 /  (株)エントランス
諸経費 火災保険 月額 600円
設備 ガス(都市ガス)、インターホン(TVモニター付き)、防犯カメラ、オートロック、専用ゴミ置き場(24Hゴミ出し可)、駐輪場、日当り良好、通風良好、フローリング、全居室フローリング、クッションフロア、照明器具、ベランダ・バルコニー、ウォークインクローゼット、ウォークインクローゼット数(1)、下駄箱、バス・トイレ別(別室)、シャワー、追い焚き、浴室乾燥機、脱衣所、給湯、ウォシュレット、ウォームレット、洗面台、洗面所独立、シャンプードレッサー、洗濯機置き場(室内)、コンロ設置済、コンロ口数(3)、コンロ種類(都市ガス)、グリル、システムキッチン、カウンターキッチン、アイランドキッチン、24H換気システム、インターネット使用料無料
備考 -

近隣マップ

ムーランアヴァンBへのお問い合わせ

株式会社Brand New Home

072-252-1220

お問い合せ番号: 12480008

所在地 〒591-8043 大阪府堺市北区北長尾町2-4-8
営業時間 10:00~18:00 定休日 不定休

お問い合せフォーム

必須お名前
任意フリガナ
必須メールアドレス
任意電話番号
連絡ご希望の時間帯
任意FAX番号
任意郵送 住所
必須お問い合せ内容

個人情報のお取り扱いについて

お問い合わせフォームからお客様が入力された個人情報は、資料送付・電子メール送信・電話連絡などの目的でのみ使用いたします。 また、本サービスを円滑に運用するために、お客様の個人情報をサービスご利用の控えとして一定期間保管いたします。 メールアドレス・電話/FAX番号など、ご記入の内容が不明確でご連絡差し上げる事ができない場合、当社が本サービスを円滑に運用するために必要な範囲において直接確認のご連絡をさせていただく場合がありますのであらかじめご了承ください。 個人情報の取扱い方針については、こちらをご覧ください。

新着お知らせ