株式会社Brand New Home

  • お気に入り
  • プライバシーポリシー
  • サイトマップ
株式会社Brand New Home

営業時間 / 10:00~18:00 (定休日/不定休)

Plage-five 2階

  • 敷金0

お問い合わせ番号: 11794632

部屋紹介

Brand New Home(ブランニューホーム)で新しい住まいを♪
TVモニターホンで来客の顔が見えるので安心です(^^)/
室内設備がこれでもかというほど充実しております♪
日々充実した生活を素敵なお部屋でスタートさせませんか(^^)

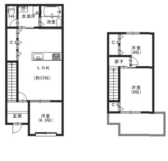
間取り 間取り詳細 面積 賃料 管理費/共益費 敷金(保証金) 礼金 採光向き
3LDK LDK 13畳
洋室 4.5畳
洋室 6畳
洋室 4畳
70㎡

106,000

5,000円 無料 1ヶ月 -

物件写真

物件情報は代表的なお部屋を掲載しております。
建物内の別の間取りでも空室がある場合がございます。
ご指名物件の空室待ちなども受付けておりますので、お電話かメールにてスタッフまでお申付下さい。
※写真や図と現況が異なる場合は現況を優先させていただきます。

部屋紹介

間取り 3LDK
間取り詳細 LDK 13畳 、 洋室 4.5畳 、 洋室 6畳 、 洋室 4畳

物件概要・設備
情報登録日:2025年05月20日 情報更新日:2025年08月10日 次回更新予定日:2025年08月24日

物件種別 一戸建
物件名 Plage-five
物件所在地 大阪府堺市堺区大浜北町3丁
交通機関
  • 南海本線「堺駅」より徒歩7分
  • 南海本線「湊駅」より徒歩12分
  • 南海高野線「堺東駅」より徒歩27分
  • 南海本線「七道駅」より徒歩29分
周辺施設
  • スーパー: 日之出屋堺駅南口店 距離679m
  • スーパー: サンプラザ堺少林寺町西店 距離946m
  • スーパー: コーヨー堺店 距離882m
  • コンビニ: セブンイレブン堺大浜中町3丁店 距離239m
  • コンビニ: ローソン堺大浜店 距離373m
  • コンビニ: ファミリーマートフェニックス通り店 距離649m
  • ドラッグストア: ココカラファイン南海堺店 距離1042m
  • 病院: 医療法人いずみ会阪堺病院 距離318m
特記事項 二人入居可、ファミリータイプ、ペット不可
賃料 106,000円 管理費/共益費 5,000円
敷金 無料 礼金 1ヶ月
フリーレント - 保険 2年 25000円
間取り 3LDK 面積 70㎡
採光向き - 契約形態 普通契約 2年
所在階 2階 入居可能日 即日
総戸数 1戸 竣工月 1980年4月
建築構造 木造 建物階建 地上2階 
駐車場 駐車料 -
火災保険 鍵交換代 -
保証会社 -
諸経費 -
設備 ガス(都市ガス)、インターホン(TVモニター付き)、通風良好、フローリング、全居室フローリング、クッションフロア、照明器具、ベランダ・バルコニー、クローゼット、クローゼット数(2)、バス・トイレ別(別室)、シャワー、脱衣所、給湯、ウォシュレット、洗面台、シャンプードレッサー、洗濯機置き場(室内)、コンロ設置済、コンロ口数(2)、コンロ種類(都市ガス)、グリル、システムキッチン、カウンターキッチン
備考 -

近隣マップ

Plage-fiveへのお問い合わせ

株式会社Brand New Home

072-252-1220

お問い合せ番号: 11794632

所在地 〒591-8043 大阪府堺市北区北長尾町2-4-8
営業時間 10:00~18:00 定休日 不定休

お問い合せフォーム

必須お名前
任意フリガナ
必須メールアドレス
任意電話番号
連絡ご希望の時間帯
任意FAX番号
任意郵送 住所
必須お問い合せ内容

個人情報のお取り扱いについて

お問い合わせフォームからお客様が入力された個人情報は、資料送付・電子メール送信・電話連絡などの目的でのみ使用いたします。 また、本サービスを円滑に運用するために、お客様の個人情報をサービスご利用の控えとして一定期間保管いたします。 メールアドレス・電話/FAX番号など、ご記入の内容が不明確でご連絡差し上げる事ができない場合、当社が本サービスを円滑に運用するために必要な範囲において直接確認のご連絡をさせていただく場合がありますのであらかじめご了承ください。 個人情報の取扱い方針については、こちらをご覧ください。

新着お知らせ