株式会社Brand New Home

  • お気に入り
  • プライバシーポリシー
  • サイトマップ
株式会社Brand New Home

営業時間 / 10:00~18:00 (定休日/不定休)

浅香山グリーンマンション 8階

  • 敷金0
  • ペット可
  • 駅近

お問い合わせ番号: 13950166

部屋紹介

Brand New Home(ブランニューホーム)で新しい住まいを♪
グリル付きの3口コンロで段取り良く料理が出来ます♪
脱衣場もあり室内に洗濯機もお設置出来るお部屋です^^
家具などの配置で色々な雰囲気を楽しめる唯一無二のこの空間でどんなお部屋に仕上げますか^^

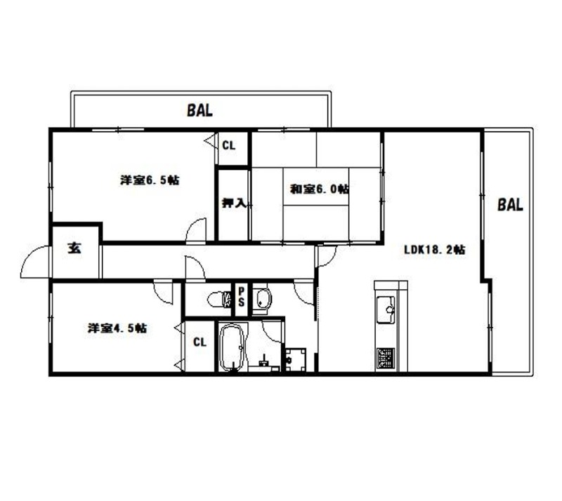
間取り 間取り詳細 面積 賃料 管理費/共益費 敷金(保証金) 礼金 採光向き
3LDK LDK 15.9畳
洋室 5畳
洋室 6畳
和室 6畳
79.15㎡

104,000

9,480円 無料 250,000円

物件写真

物件情報は代表的なお部屋を掲載しております。
建物内の別の間取りでも空室がある場合がございます。
ご指名物件の空室待ちなども受付けておりますので、お電話かメールにてスタッフまでお申付下さい。
※写真や図と現況が異なる場合は現況を優先させていただきます。

部屋紹介

間取り 3LDK
間取り詳細 LDK 15.9畳 、 洋室 5畳 、 洋室 6畳 、 和室 6畳

物件概要・設備
情報登録日:2026年03月05日 情報更新日:2026年03月05日 次回更新予定日:2026年03月19日

物件種別 マンション
物件名 浅香山グリーンマンション
物件所在地 大阪府堺市北区常磐町1丁
交通機関
  • JR阪和線「浅香駅」より徒歩3分
  • OsakaMetro御堂筋線「北花田駅」より徒歩15分
  • 南海高野線「浅香山駅」より徒歩15分
  • JR阪和線「杉本町駅」より徒歩10分
周辺施設
  • ショッピングセンター: イオンモール堺北花田 距離1218m
  • スーパー: 食品館アプロ浅香山店 距離485m
  • スーパー: スーパー玉出堺店 距離1131m
  • コンビニ: セブンイレブン堺浅香山町3丁店 距離561m
  • コンビニ: ファミリーマート堺常磐町店 距離611m
  • コンビニ: ローソン堺今池町店 距離837m
  • ドラッグストア: マツモトキヨシアプロ浅香山店 距離955m
  • ドラッグストア: スギ薬局堺東雲店 距離923m
特記事項 二人入居可、ファミリータイプ、ペット対応、保証会社利用可
賃料 104,000円 管理費/共益費 9,480円
敷金 無料 礼金 250,000円
フリーレント - 保険 2年 20000円
間取り 3LDK 面積 79.15㎡
採光向き 契約形態 普通契約 1年
所在階 8階 入居可能日 2026/4/中
総戸数 115戸 竣工月 1994年11月
建築構造 RC 建物階建 地上10階 
駐車場 駐車料 10,500円
火災保険 鍵交換代 16,500円
保証会社 要加入 /  オリコフォレントインシュア
諸経費 安心入居サポート 15,000円
設備 ガス(都市ガス)、インターホン(TVモニター付き)、専用ゴミ置き場(24Hゴミ出し可)、駐輪場、バイク置き場、日当り良好、通風良好、フローリング、クッションフロア、ベランダ・バルコニー、クローゼット、クローゼット数(2)、押入れ、バス・トイレ別(別室)、シャワー、追い焚き、脱衣所、給湯、洗面台、洗濯機置き場(室内)、コンロ設置済、コンロ口数(3)、コンロ種類(都市ガス)、システムキッチン、カウンターキッチン、CATV
備考 -

近隣マップ

浅香山グリーンマンションへのお問い合わせ

株式会社Brand New Home

072-252-1220

お問い合せ番号: 13950166

所在地 〒591-8043 大阪府堺市北区北長尾町2-4-8
営業時間 10:00~18:00 定休日 不定休

お問い合せフォーム

必須お名前
任意フリガナ
必須メールアドレス
任意電話番号
連絡ご希望の時間帯
任意FAX番号
任意郵送 住所
必須お問い合せ内容

個人情報のお取り扱いについて

お問い合わせフォームからお客様が入力された個人情報は、資料送付・電子メール送信・電話連絡などの目的でのみ使用いたします。 また、本サービスを円滑に運用するために、お客様の個人情報をサービスご利用の控えとして一定期間保管いたします。 メールアドレス・電話/FAX番号など、ご記入の内容が不明確でご連絡差し上げる事ができない場合、当社が本サービスを円滑に運用するために必要な範囲において直接確認のご連絡をさせていただく場合がありますのであらかじめご了承ください。 個人情報の取扱い方針については、こちらをご覧ください。

新着お知らせ