株式会社Brand New Home

  • お気に入り
  • プライバシーポリシー
  • サイトマップ
株式会社Brand New Home

営業時間 / 10:00~18:00 (定休日/不定休)

メゾン材木町 2階

お問い合わせ番号: 14082773

部屋紹介

Brand New Home(ブランニューホーム)で新しい住まいを♪
広めのお部屋に広めのクローゼットが自由な空間を演出してくれます^^
浴室乾燥機も付いているのでお仕事の帰りが遅い方や急な雨も気にしなくていいですね。
コンビニやスーパーが近くにあるのでお買い物が便利♪

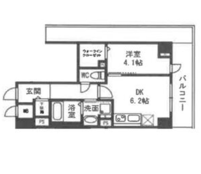
間取り 間取り詳細 面積 賃料 管理費/共益費 敷金(保証金) 礼金 採光向き
1DK DK 6.2畳
洋室 4.1畳
31.64㎡

69,000

7,500円 20,000円 180,000円 南東

物件写真

物件情報は代表的なお部屋を掲載しております。
建物内の別の間取りでも空室がある場合がございます。
ご指名物件の空室待ちなども受付けておりますので、お電話かメールにてスタッフまでお申付下さい。
※写真や図と現況が異なる場合は現況を優先させていただきます。

部屋紹介

間取り 1DK
間取り詳細 DK 6.2畳 、 洋室 4.1畳

物件概要・設備
情報登録日:2026年04月03日 情報更新日:2026年04月03日 次回更新予定日:2026年04月17日

物件種別 マンション
物件名 メゾン材木町
物件所在地 大阪府堺市堺区材木町東1丁
交通機関
  • 南海本線「堺駅」より徒歩13分
  • 南海高野線「堺東駅」より徒歩13分
  • 南海本線「七道駅」より徒歩15分
  • 南海高野線「浅香山駅」より徒歩18分
周辺施設
  • スーパー: スーパー玉出神明店 距離326m
  • スーパー: ライフ堺駅前店 距離527m
  • スーパー: ダイエー堺店 距離729m
  • コンビニ: ファミリーマート堺櫛屋町東二丁店 距離369m
  • コンビニ: ローソン堺熊野町東店 距離690m
  • ドラッグストア: ココカラファイン堺駅前店 距離527m
  • 病院: 医療法人淳康会堺近森病院 距離1401m
  • 郵便局: 堺材木町郵便局 距離310m
特記事項 ペット不可、保証会社利用可
賃料 69,000円 管理費/共益費 7,500円
敷金 20,000円 礼金 180,000円
フリーレント - 保険 1年 10000円
間取り 1DK 面積 31.64㎡
採光向き 南東 契約形態 普通契約 1年
所在階 2階 入居可能日 2026/5/中
総戸数 25戸 竣工月 2017年7月
建築構造 RC 建物階建 地上6階 
駐車場 駐車料 11,000円
火災保険 鍵交換代 27,500円
保証会社 要加入 /  エポス
諸経費 駆けつけサービス 月額 800円
設備 ガス(都市ガス)、インターホン(TVモニター付き)、オートロック、宅配ボックス、専用ゴミ置き場(24Hゴミ出し可)、駐輪場、角部屋、通風良好、フローリング、全居室フローリング、クッションフロア、ベランダ・バルコニー、ウォークインクローゼット、ウォークインクローゼット数(1)、下駄箱、バス・トイレ別(別室)、シャワー、追い焚き、浴室乾燥機、脱衣所、給湯、ウォシュレット、洗面台、洗面所独立、シャンプードレッサー、洗面所にドア、洗濯機置き場(室内)、コンロ設置済、コンロ口数(2)、コンロ種類(都市ガス)、システムキッチン、エアコン、エアコン台数(1)、24H換気システム、光ファイバー
備考 -

近隣マップ

メゾン材木町へのお問い合わせ

株式会社Brand New Home

072-252-1220

お問い合せ番号: 14082773

所在地 〒591-8043 大阪府堺市北区北長尾町2-4-8
営業時間 10:00~18:00 定休日 不定休

お問い合せフォーム

必須お名前
任意フリガナ
必須メールアドレス
任意電話番号
連絡ご希望の時間帯
任意FAX番号
任意郵送 住所
必須お問い合せ内容

個人情報のお取り扱いについて

お問い合わせフォームからお客様が入力された個人情報は、資料送付・電子メール送信・電話連絡などの目的でのみ使用いたします。 また、本サービスを円滑に運用するために、お客様の個人情報をサービスご利用の控えとして一定期間保管いたします。 メールアドレス・電話/FAX番号など、ご記入の内容が不明確でご連絡差し上げる事ができない場合、当社が本サービスを円滑に運用するために必要な範囲において直接確認のご連絡をさせていただく場合がありますのであらかじめご了承ください。 個人情報の取扱い方針については、こちらをご覧ください。

新着お知らせ