株式会社Brand New Home

  • お気に入り
  • プライバシーポリシー
  • サイトマップ
株式会社Brand New Home

営業時間 / 10:00~18:00 (定休日/不定休)

エクセル三国ヶ丘 4階

  • 敷金0

お問い合わせ番号: 10580443

部屋紹介

Brand New Home(ブランニューホーム)で新しい住まいを♪
和と洋それぞれのお部屋をお好きなインテリアで暮らしを充実させませんか(^^)
駅まで徒歩圏内なので交通のアクセスも優れています。
陽当たりも良く、お部屋も心も明るく新生活スタートさせちゃいましょう♪

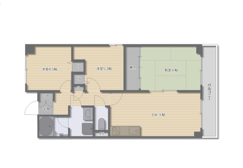
間取り 間取り詳細 面積 賃料 管理費/共益費 敷金(保証金) 礼金 採光向き
3DK DK 9畳
和室 6畳
洋室 5.2畳
洋室 4.5畳
56.6㎡

75,000

10,000円 無料 150,000円 西

物件写真

物件情報は代表的なお部屋を掲載しております。
建物内の別の間取りでも空室がある場合がございます。
ご指名物件の空室待ちなども受付けておりますので、お電話かメールにてスタッフまでお申付下さい。
※写真や図と現況が異なる場合は現況を優先させていただきます。

部屋紹介

間取り 3DK
間取り詳細 DK 9畳 、 和室 6畳 、 洋室 5.2畳 、 洋室 4.5畳

物件概要・設備
情報登録日:2024年10月15日 情報更新日:2024年12月24日 次回更新予定日:2025年01月07日

物件種別 マンション
物件名 エクセル三国ヶ丘
物件所在地 大阪府堺市堺区向陵中町3丁
交通機関
  • JR阪和線「三国ケ丘駅」より徒歩8分
  • 南海高野線「百舌鳥八幡駅」より徒歩15分
  • JR阪和線「堺市駅」より徒歩13分
  • 南海高野線「堺東駅」より徒歩16分
周辺施設
  • スーパー: 成城石井三国ヶ丘店 距離388m
  • スーパー: サンプラザ三国ヶ丘向陵西店 距離628m
  • スーパー: サンプラザ三国ヶ丘東店 距離910m
  • コンビニ: アンスリーN.KLASS三国ヶ丘店 距離203m
  • コンビニ: セブンイレブン堺向陵中町5丁店 距離322m
  • コンビニ: ファミリーマート京屋三国ヶ丘駅前店 距離388m
  • ドラッグストア: オーエスドラッグ三国ヶ丘店 距離203m
  • 病院: 医療法人杏林会金岡病院 距離738m
特記事項 二人入居可、ファミリータイプ、ペット不可、保証会社利用可
賃料 75,000円 管理費/共益費 10,000円
敷金 無料 礼金 150,000円
フリーレント - 保険 2年 22000円
間取り 3DK 面積 56.6㎡
採光向き 西 契約形態 普通契約 2年
所在階 4階 入居可能日 2024/12/中
総戸数 24戸 竣工月 1997年9月
建築構造 RC 建物階建 地上4階 
駐車場 駐車料 11,000円
火災保険 鍵交換代 -
保証会社 要加入 /  たくっちサポート保障
引落手数料330円
諸経費 光触媒抗菌 入居時 24,000円
くらしーど24 入居時 15,000円
設備 ガス(都市ガス)、インターホン(TVモニター付き)、防犯カメラ、オートロック、宅配ボックス、専用ゴミ置き場(24Hゴミ出し可)、駐輪場、日当り良好、通風良好、フローリング、クッションフロア、ベランダ・バルコニー、クローゼット、クローゼット数(3)、押入れ、下駄箱、バス・トイレ別(別室)、シャワー、脱衣所、給湯、ウォシュレット、洗面台、洗面所独立、シャンプードレッサー、洗濯機置き場(室内)、コンロ設置済、コンロ口数(2)、コンロ種類(都市ガス)、グリル、システムキッチン、CATV、光ファイバー
備考

近隣マップ

エクセル三国ヶ丘へのお問い合わせ

株式会社Brand New Home

072-252-1220

お問い合せ番号: 10580443

所在地 〒591-8043 大阪府堺市北区北長尾町2-4-8
営業時間 10:00~18:00 定休日 不定休

お問い合せフォーム

必須お名前
任意フリガナ
必須メールアドレス
任意電話番号
連絡ご希望の時間帯
任意FAX番号
任意郵送 住所
必須お問い合せ内容

個人情報のお取り扱いについて

お問い合わせフォームからお客様が入力された個人情報は、資料送付・電子メール送信・電話連絡などの目的でのみ使用いたします。 また、本サービスを円滑に運用するために、お客様の個人情報をサービスご利用の控えとして一定期間保管いたします。 メールアドレス・電話/FAX番号など、ご記入の内容が不明確でご連絡差し上げる事ができない場合、当社が本サービスを円滑に運用するために必要な範囲において直接確認のご連絡をさせていただく場合がありますのであらかじめご了承ください。 個人情報の取扱い方針については、こちらをご覧ください。

新着お知らせ